コンセプトConcept
一連の家事動線に配慮した「回遊動線」と、リビングにウィルスや花粉などの侵入を抑える「おかえり動線」、また「スキップフロア」や「ダウンフロア」といった上下の空間も活用した立体的な間取りのご提案です。
弊社の気密断熱施工と窓(トリプルガラス)で高い気密性と断熱性を保持できる故に、大空間でも快適な生活環境をご提供出来ます。
ダイニングキッチンは意匠性と作業性を兼ねた、まるで家具の様なデュエ アイランド型のキッチンを採用し、大きな空間の中にも小さな落着ける空間「ヌック」などもご覧いただけます。
インテリアコーディネートは北欧モダンとしておりますが、2階は部屋毎にコーディネートを変えておりますので、打合せの度に楽しんで頂ける事でしょう。
外観は、ブラックのベースタイルに大判のアクセントタイルを利かしたシンプルながらも存在感のある意匠です。
特徴Feature
仕様Spec
-
工法
木造枠組壁工法
(2x6工法) -
坪単価
70万円~
-
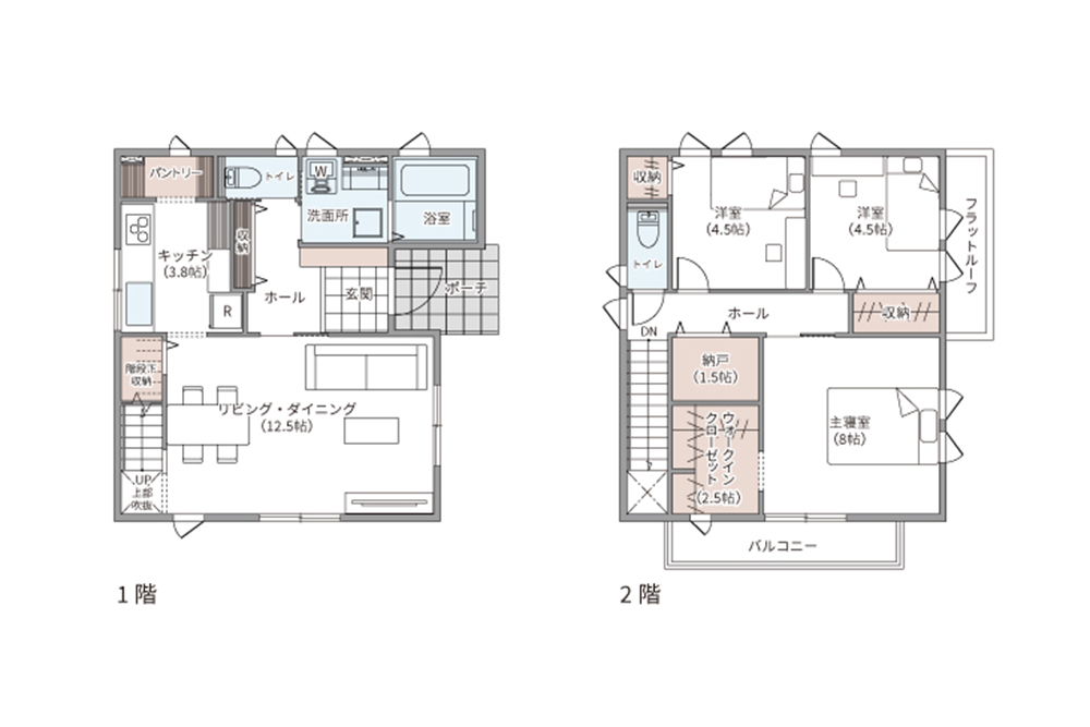
間取り
6LDK
-
延床面積
278.63 ㎡
施工事例ギャラリーGallery
参考プランPlan

