コンセプトConcept
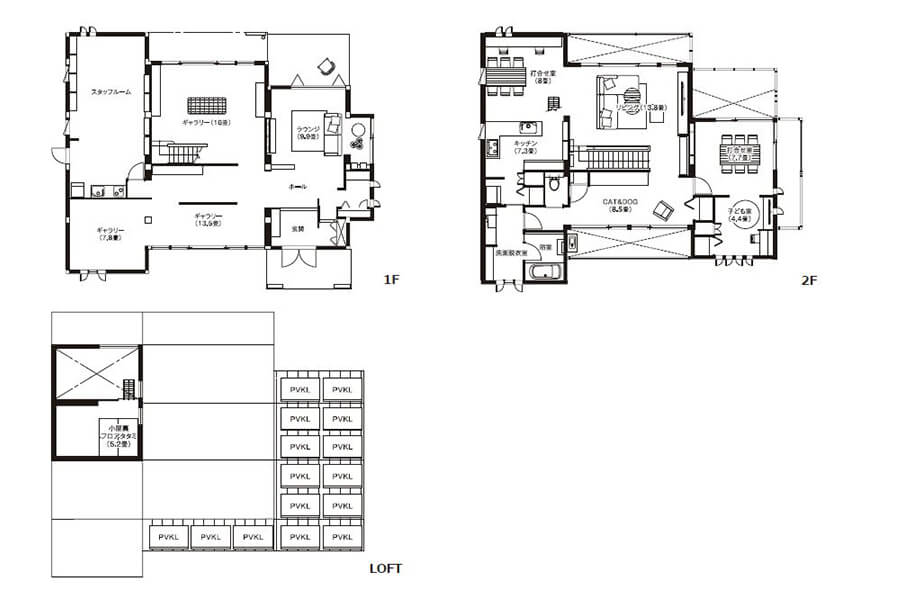
ペットと一緒に楽しくご生活を送れるをコンセプトとした展示場です。いたるところにキャットウォークやワンちゃん用のケージ、ペット用の出入り口が備え付けてあります。また、壁による遮りを少なくしどこにいてもワンちゃん、ネコちゃんを感じられる間取りとなっております。広々としたLDKには大開口を設け、自然の光を多く取り込み、明るい空間でゆっくりとお過ごしいただけます。回遊性のある動線も時短の重要性の高まったこのご時世にぴったりです。是非、セキスイハイム横浜パルフェ展示場でご体感ください。
特徴Feature
仕様Spec
-
工法
鉄骨系ユニット工法/木質系ユニット工法(2×6)
-
坪単価
お問い合わせください
-
間取り
ー
-
延床面積
239.33平米
施工事例ギャラリーGallery
参考プランPlan

