見学予約をする

スタイリッシュなデザイン
機能性を両立した住まい

コンセプトConcept

大きな吹き抜けで家族の気配を感じられる開放的な住まいには、ダウンリビングや鉄筋コンクリート住宅ならではの遮音性を活かしたシアタールーム、暑い夏も寒い冬も1年中快適に過ごせて経済的なZ空調など、住み心地を高める多彩な仕掛けが。美術館のようなモダンな外観美と共に、ぜひご体感ください。

特徴Feature

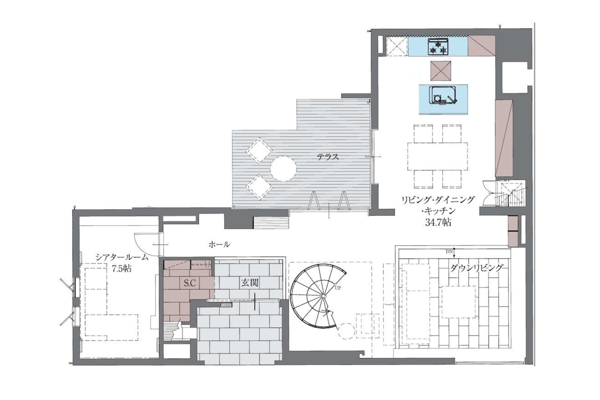
アイランドキッチン。使い勝手とデザイン性を両立し毎日の快適を支えます。

ダウンリビング。床を下げることで解放感と適度なこもり感も感じられる特別な場所となります。

シアタールーム。コンクリート住宅ならではの抜群の遮音性を活かして、周囲や時間を気にせず楽しめます。

ウォークインクローゼット。大きい荷物の出し入れも楽。引出しも付いて使い勝手がいいクローゼット。

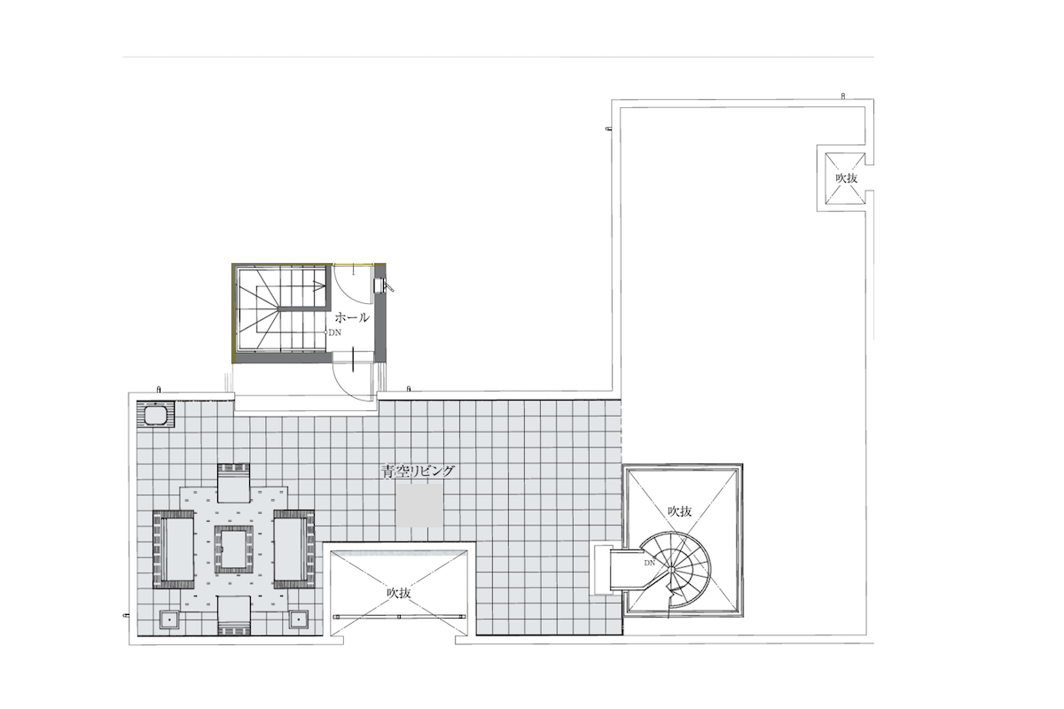
青空リビング。フラットルーフを活用して、バーベキューやプールなど家族の時間を楽しめます。

仕様Spec

  • 工法

    WPC工法(壁式コンクリートパネル工法)

  • 坪単価

    坪80万~

  • 間取り

    3LDK

  • 延床面積

    170.26㎡

参考プランPlan

螺旋階段と大きな吹き抜けが創り出す、立体的な空間のつながり

家事の合間に一息つける空間、リトリートルームを家事動線上にレイアウト

セカンドリビングとして活用できる屋上

【安全・安心】な理想の住まいをカタチにします

あなたが家をつくる時、一番大切にしたいことは何ですか?家族団らんを育む家。子育てしやすい家。メンテナンス負担の少ない家。趣味を楽しむ家。デザインにこだわった家。テレワークのしやすい家。100人100通り、【家】に求めるモノは様々です。でも、どんなお住まいにも共通して求められるのは【安全・安心】。大きな災害が来ても家にいることが一番の安心になる家。老後も安心して住める長持ちする家。暑さ寒さに煩わされず快適に過ごせる家。家族が笑顔で過ごせる家でありたい。家族が笑顔で帰れる家でありたい。だからこそヒノキヤレスコは安全に暮らせる家づくりをご提案いたします。

キャンペーン情報Campaign

避難所になる家を。【災害レス コンクリート住宅】

災害大国、ニッポン。日本の家には常識を超えた強さが必要です。命を守るだけじゃ足りない。家という財産も守る。地震に強いだけじゃ足りない。風水害にも強くなければ。今の安心だけじゃ足りない。100年先まで安心も快適も続かなければ。だからレスコハウスはコンクリートの壁からつくる。壁面全体を強くするWPC工法で、家そのものを避難所に。万が一の時も、家にいることが一番の安全対策になる。まさに【災害レス】。新しい時代のコンクリート住宅がここから始まります。
【モデルハウスお問合せ】045-314-7802

見学予約をする